本文へスキップ

大切なご自宅購入を仲介手数料無料で精一杯お手伝い

お客様窓口【無料相談】/info@first-a.info

TEL:042-400-7908

新築一戸建て|多磨霊園10分・東府中14分


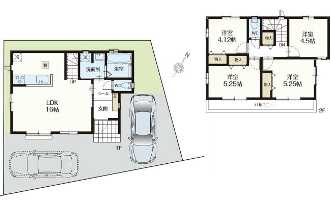
5,490万円/4LDK+2P

月々約14.3万円(フルローン金利0.5%で試算)
仲介手数料かかりません♪
現地待ち合わせ歓迎です。見学予約する(無料)
住所/府中市是政1 完成/2025年10月
アクセス/京王線「多磨霊園駅」徒歩10分、「東府中駅」徒歩14分
府中市の一戸建て購入は、情報量豊富なファーストエージェンシーにお任せ下さい。

画像

画像

画像

画像

画像

画像

画像

画像


物件概要


土地権利/
所有権

地目/
宅地

建物構造/
木造サイディング貼アスファルトシングル葺2階建て

用途地域/
第1種低層住居専用地域

法制限/
第1種高度地区、22条区域

建ぺい率/
40%

容積率/
80%

設備/
東京電力・公営水道・都市ガス・本下水

接道/
南東側約4m私道※私道持分19m2

備考/
その他詳細はお気軽にお問い合わせくださいませ。

資料請求(無料)/
販売図面やパンフレットをお送りいたします。
資料請求後のしつこい営業などは一切ございませんので、お気軽にお申し付けくださいませ。

ご見学の流れ


イラスト

1.気になる物件は、どんどん見学に参りましょう

ご準備は特に不要です。図面やメジャー、スリッパはご用意いたしますのでご安心下さい。スマートフォンやデジカメなどお持ち頂くと、なお便利です。
イラスト

2.現地では、ご案内スタッフに何でもご質問下さい

敷地、間取り、設備、オプション、周辺環境など、わかりやすくご紹介いたします。気になる点がございましたら、何でもご質問下さいませ。
イラスト

3.担当者がついてまわらない自由見学もできます

現地で資料をお渡ししますので、お客様のペースでじっくりご覧頂けます。ご不明な点は、何でもご質問下さいませ。

ご見学のポイント


イラスト

1.どんなものか知るために、まずは1件見学に参りましょう

実際に見学すると、写真や図面からは気づかなかった様々なことを実感頂けると思います。完成前物件は、地盤やインフラ、構造などを詳しくご案内いたします。
イラスト

2.複数の物件を見て比較していきましょう

複数の物件を見学することで、優先順位が明確化していくメリットがあります。お客様にぴったりの1件を一緒にお探しできれば嬉しく思います。
イラスト

3.購入を決める前にもう一度見学して確認しましょう

朝や夜など時間帯や曜日を変えて訪問してみると、周辺環境なども実感頂けると思います。何件でも・何度でもご案内させて頂ければ幸いです。ぜひお気軽にお申し付け下さい。

ご契約・お引渡しの流れ


イラスト

1.物件購入のお申込
【1日目】

売主に対して購入意思を示すお手続きです。優先順位は先着順が基本となります。
【場所】現地など
【所要時間】5~10分程度
【必要な物】認印(サインでも大丈夫です)
イラスト

2.住宅ローンの事前審査
※組む場合【2~3日目】

早めに受けておくと安心です。住宅ローンの種類、金利、控除などご紹介します。
【場所】WEBなど
【所要時間】30~60分程度
【必要な物】認印(金融機関により実印)、コピー(源泉徴収票、免許証の表裏、保険証の表裏)
イラスト

3.重要事項説明
【3~7日目】

対象物件・契約条件の確認を行います。わからないことは何でもご質問下さい。
【場所】売主事務所、当社など
【所要時間】60分程度
【必要な物】認印、運転免許証等の本人確認書類(ご提示のみ)
イラスト

4.売買契約締結
【3~7日目】

重要事項説明書と突き合わせ、確認をしていきます。その後、売主とお客様が契約書に署名捺印して契約締結となります。
【場所】売主事務所、当社など
【所要時間】60分程度
【必要な物】認印、運転免許証等の本人確認書類(ご提示のみ)、印紙(物件価格5千万円以下:1万円、5千万円超え:3万円)、物件価格10%以内の手付金(100~200万円が相場です)※物件価格に充当されます
イラスト

5.住宅ローンの正式申込
※組む場合【10~15日目】

売買契約が完了したら、住宅ローンも正式申込へ進みます。
【場所】WEB、銀行など
【所要時間】30分程度
【必要な物】実印、印鑑証明書、住民票、収入証明資料(源泉徴収票、課税証明書※自営業のお客様は確定申告書など)
イラスト

6.金銭消費貸借契約
※組む場合【15~20日目】

いわゆる住宅ローン契約を、金融機関と正式に締結します。
【場所】WEB、銀行など
【所要時間】60~120分程度
【必要な物】実印、通帳および通帳印、運転免許証等の本人確認書類(ご提示のみ)
イラスト

7.立合い
【15~20日目】

お引渡の前に、一緒にキズや汚れなどをチェックします。
【場所】現地
【所要時間】60分程度
【必要な物】特にございません(図面やチェック用紙をご用意いたします)
イラスト

8.残金決済・お引渡し
【30~40日目】

融資が実行され売主への支払いが完了します。残金決済日は契約時に決定されるので、借入金は決済日までに支払われるよう金融機関に頼んでおきます。同席の司法書士は所有権登記に向かい、鍵のお受け取り・お引渡しとなります。
【場所】銀行など
【所要時間】60~90分程度
(平日午前中)
【必要な物】運転免許証等の本人確認書類(ご提示のみ)、実印、通帳および通帳印

役所などで取得して頂く書類


  • 住民票(世帯全員のもの)×3通
  • 印鑑証明書×3通
  • 住民税課税証明書(自営業のお客様は確定申告書など)

ご用意頂く書類


  • 源泉徴収票(お手元にない場合お勤め先から取得できます)
  • コピー(住民票、源泉徴収票、住民税課税証明書、免許証の表裏、保険証の表裏)

バナースペース


←仲介手数料…無料
住宅ローン代行も無料
←値引き相談…無料
価格の相談歓迎
←見学・相談…無料
ご見学は現地待ち合わせ歓迎

創業20年の実績!不動産売買専門
「無料の仲介」
当社へ直接お問い合わせで
仲介手数料なし
SUUMO、アットホーム、HOME'S、Yahoo!不動産などで
見つけた物件も仲介手数料無料♪


お問い合わせ
受付時間/9:30~18:30(月~金)
受付時間/24h(月~金・土日祝)

●これはどんな物件ですか?
(詳しいスタッフがお応えします)
●仲介手数料なしのデメリットは?

(ご安心下さい。特にありません)
●載ってない物件も手数料無料?
(1都3県は、ほとんどが無料です)
●今から見学したいのですが
(本日歓迎です。お気軽にどうぞ)
●諸費用等がわかる資料が欲しい
(先に資金計画表をお送りします)
●住宅ローンも相談できますか?
(各行提携&有資格者が無償対応)

などなど、どんなことでもお気軽に
お問い合わせ下さい。


2005年設立の安定企業
株式会社ファーストエージェンシー

住所/東京都多摩市関戸2-32-5 4F
販売エリア/
東京都・神奈川県・埼玉県・千葉県
を中心とした首都圏

ビジネスマン



スーモ掲載店舗 アットホーム掲載店舗

ホームズ掲載店舗ヤフー不動産掲載店舗
などで見つけた物件も
仲介手数料無料
専任物件も仲介手数料半額


提携銀行(金融機関)
  • 三菱UFJ銀行
  • みずほ銀行
  • 三井住友銀行
  • りそな銀行
  • 中央労働金庫(ろうきん)
  • スルガ銀行リクルート支店
  • 巣鴨信用金庫
  • 朝日信用金庫
  • ARUHI(旧SBIモーゲージ)
  • ファミリーライフサービス
  • 住信SBIネット銀行
  • 三井住友トラスト・
    ローン&ファイナンスほか
  • 住宅ローンアドバイザーご対応
  • 住宅ローン代行手数料無料


ロゴ

  • ハザードマップポータルサイトロゴ

新着・値下情報 ロゴ



「Fun to Share」に賛同しています。
  • ロゴ